摘要:本文科學地比較了目前工業上壓縮空氣系統冷凝液排除的幾種不同方法,介紹了當前世界上比較受歡迎的冷凝液排除器—電子液位控制冷凝液自動排除器的原理及其優越性。
關鍵詞: 壓縮空氣 冷凝液 排水器 排污閥
前言
在前期的《壓縮空氣系統冷凝液的產生及其危害性》中論述了壓縮空氣系統會產生大量冷凝液并對系統設備和產品質量帶來極大危害是客觀事實。實際上,冷凝液給工業企業造成很多麻煩,不僅因系統設備腐蝕而增加設備更新和維修費用,而且會對產品質量帶來影響,同時,由于設備的更換和維修而停產影響進度和產量,這樣直接增加企業生產成本,降低經濟效益。因此,有必要對壓縮空氣系統冷凝液排除方法進行分析研究。
一、傳統的冷凝液排放方法
1、人工手動(Manual)
這是一種最簡單、最原始的人為手工排放方法,在我國多數老企業中主要采取這種方法。表面看上去,似乎認為是可靠的,其實并不然。因為冷凝液的產生與壓縮空氣的溫度、濕度有關,在相同的壓縮空氣系統中,溫度和濕度隨著不同的季節和不同的天氣而不相同。因此,壓縮空氣系統中冷凝液產生隨機性很大,甚至于在同一天的早、中、晚不同時間都不同。就冷凝液產生這一特點來說,用人工定時排放方法,不可能確保壓縮空氣系統的冷凝液得到及時的排除。同時在排放過程之中不可避免的要放掉部分壓縮空氣,造成壓縮空氣損失。另外,人工排放的不可靠性還在于人為因素差錯的影響,例如:人的責任心、思想情緒等都會影響冷凝液的及時排放。
根據普遍調查,采取人工排放的企業中,為了確保冷凝液全部排除,多數將排放閥置于常開狀態,豈不知這樣會造成巨大的浪費損失。
2、定時電磁閥排放 (Time controlled solenoid valve)
不論是定時電磁閥還是電動定時排水器都是根據事先設定的時間間隔,在一定時間內打開排放一次。從設計思想上講,定時電磁閥、電動定時排水器是從人工定時排放發展而來,定時有了確保,但帶來的是更大的壓力損失。定時閥開啟時間的設定一般應按冷凝液產生的高峰值來設定,實際上,每年冷凝液產生量的平均值較最高值相差甚遠,有效排放冷凝液的時間為17%,而83%是排放空氣的時間,不可避免會帶來泄漏損失。
從冷凝液排放的及時性上講,與人工排放存在著同樣的問題,在關閉狀態系統中不可避免地存在著冷凝液。另外,由于結構設計所限,電磁閥門直徑不可能很大,很容易腐蝕或被雜質堵塞,使用壽命短,增加了換件次數和維修量,加大運行費用。
3、浮球閥自動排放(Float operated drainage)
人們仍在不斷改進空壓系統冷凝液的排放方法,于是浮球閥出現了。目前,世界各國工業企業中,壓縮空氣系統中冷凝液排放采用浮球閥較多。在我國新建的企業或新購置的空壓機系統多數都配置浮球閥。浮球閥的種類很多,其基本原理是一樣的,都是利用浮子(浮桶、浮球)的浮力,通過活動部件傳遞,控制開啟或關閉閥門。由于浮球結構本身的問題,浮球閥存在著如下不可避免的弊端:
(1)、閥門堵塞:由于結構空間所限,浮子(浮桶、浮球)不可能很大,則浮力就不可能足夠大;為了確保閥門的密封性,排放口的直徑也就受到限制,很容易被雜質堵塞。
(2)、傳動機構卡死:控制浮子上浮下沉的傳動機構,一般都置于冷凝液中,由于冷凝液的腐蝕作用或雜質的影響,常常被卡死使閥門失效。
由此看來,為了確保浮球閥正常運行,就必須增加維修量和換件量,這樣,不僅加大運行成本,而且帶來了運行安全性差等諸多弊端。
二、當今優勢明顯的排放方法—電子液位控制冷凝液自動排除器
隨著工業技術不斷進步,電子液位控制冷凝液自動排除器的問世,解決了傳統的冷凝液排放方法存在的各種問題,是當今世界上更具優勢的冷凝液排放方法。其工作原理是:電容傳感器監測冷凝液液位,通過微電腦控制,改變膜閥片上下壓差,控制膜閥片開閉,達到自動排放目的。(見圖1)
1、工作原理;

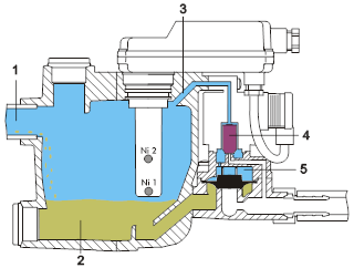
圖1
圖1: 冷凝液從進口(1)進入容器(2),由于閥芯(4)開啟使氣路(3)與膜閥片(5)上腔相通,從圖中可以看出膜閥片上下腔都充滿壓力,由于壓力作用面積不同而形成膜閥片上下表面壓差,(上表面為圓面積,下表面為等徑環形面積)有足夠壓力確保膜閥片與閥口密封 。
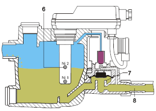
圖2
圖2:當容器(2)充滿了冷凝液,達到設定位置Ni2時,電容傳感器發出信號,在電磁線圈作用下閥芯(4)便升起關閉氣路(3),同時打開通向排出口(8)的氣路,膜閥片(5)上腔的壓力卸掉,此時,膜閥片(5)在下腔冷凝液壓力作用下離開閥座(7),冷凝液便從出口(8)排出。
當容器(2)冷凝液在排出過程中下降到設定位置Ni1時,又恢復到圖1狀態,膜閥片(5)關閉。這樣反復進行便達到自動排放冷凝液的目的。
2、電子液位控制冷凝液自動排除器的優點:
從冷凝液電子液位控自動排除器研制到現在已有27年的歷史,在實踐中不斷改進,現在是第第三代產品,在技術先進性上領導世界先進水平。其優點如下:
(1)、科學地應用了膜閥片壓力傳遞原理,無活動部件,無磨損;
(2)、冷凝液排放口大,排放可靠,不易堵塞;
(3)、適應各種重工業環境,故障率低,壽命長;
(4)、由于膜閥片與閥座密封性好,電子監測液位降到設定的最低點位置,精確地計算出閥門關閉時間,確保只排液不排氣,減少壓縮空氣損失,節約能源;
(5)、具有可靠的自監自控系統和報警系統,出現異常時,自動報警并可將信號送到控制室,提高了運行的可靠性;
(6)、結構簡單,易于安裝。
配有電子液位控制冷凝液自動排除器的壓縮空氣系統真正彌補了薄弱環節,使系統的整體可靠性上升到了一個新的臺階。